v0.14.1 Planungsnavigator
legal notice | terms | privacy | cookie-policy
Beratung anfordern
defrit

Auswahl überAufzugstyp

Wählen Sie ihren Aufzugstyp ohne Verknüpfung zum Gebäudetyp. Wir zeigen Ihnen unsere Empfehlungen aufgrund der von ihnen angewählten Kriterien. Auswählen und fortfahren

Planen überGebäudetyp

Wählen Sie im ersten Schritt das Gebäude und danach den Aufzug, den Sie einbauen möchten. Wir zeigen Ihnen unsere Empfehlungen aufgrund der von ihnen angewählten Kriterien. Auswählen und fortfahren

SIA Norm 261

Berechnen Sie die Bemessungsbeschleunigung am geplanten Standort und ermitteln Sie so die Kategorie für einen erdbebensicheren Aufzug.

Zone 1a
Zone 1b
Zone 2
Zone 3a
Zone 3b
Bedeutungswert
Bodenbeschleunigungm/s²
Wert aus SIA-261
Verhaltensbeiwert2.0
Grundschwingzeit Aufzug0.0s
Grundschwingzeit Gebäude0.6s
Bemessungsbeschleunigungm/s²
Erdbebenkategorie Aufzug–

Projekte in Erdbebenzonen müssen durch einen erfahrenen Baustatiker überprüft werden, da bei genauer Analyse weniger konservative Werte resultieren. Für Gebäude der Bauwerksklasse III muss zusätzlich die Gebrauchstauglichkeit nachgewiesen werden.

Erdbebenzone

Bauwerksklasse

Baugrundklasse

Dimensionen

Step 1 of 0

BWK I

Merkmale

    building-tier.1.features

Beispiele

  • Wohn-, Büro- und Gewerbegebäude
  • Industrie- und Lagergebäude
  • Parkgaragen
  • Brücken von untergeordneter Bedeutung nach einem Erdbeben (z.B. Fusswegbrücken und land- und forstwirtschaftlich genutzte Brücken, sofern sie nicht über Verkehrswege von erheblicher Bedeutung führen)

BWK II

Merkmale

    building-tier.2.features

Beispiele

  • Grössere Gebäude
  • Einkaufszentren, Sportstadien, Kinos, Theater und Kirchen
  • Brücken, Schutzgalerien, Stützmauern und Böschungen im Bereich von Verkehrswegen mit erheblicher Bedeutung
  • Bauwerke sowie Anlagen und Einrichtungen für Versorgung, Entsorgung und Telekommunikation von erheblicher Bedeutung

BWK III

Merkmale

    building-tier.3.features

Beispiele

  • Akutspitäler samt Anlagen und Einrichtungen
  • Bauwerke sowie Anlagen und Einrichtungen für den Bevölkerungsschutz mit lebenswichtiger Bedeutung für die Ereignisbewältigung (z.B. Feuerwehrstützpunkte oder Ambulanzgaragen)
  • Brücken, Schutzgalerien, Stützmauern und Böschungen im Bereich von Verkehrswegen mit lebenswichtiger Bedeutung für die Zugänglichkeit eines besiedelten Gebietes oder eines Bauwerks der Bauwerksklasse III nach einem Erdbeben
  • Lebenswichtige Bauwerke sowie Anlagen und Einrichtungen für Versorgung, Entsorgung, Telekommunikation

Die Bauwerke sind in eine der drei Bauwersklassen mit zugehörigem Bedeutungsbeiwert einzuteilen (Norm SIA 261:16.3.1.1). Für die Bauwerksklasse III muss zusätzlich zur Tragsicherheit die Gebrauchstauglichkeit nachgewiesen werden. Dies gilt auch für sekundäre Bauteile (Norm SIA 261:16.1.5).

Die Schachthöhe z_aza​ wird über der Angriffsebene der Erdbebeneinwirkung (Oberkante eines starren Kellergeschosses) in Meter bestimmt. Die folgenden Aufzugsschacht-Anordnungen gelten für starre Keller bzw. Untergeschosse. Der ungünstigste Fall liegt vor, wenn der Aufzug alle Geschosse erschliesst und somit z_a = hza​=h ist.

0
1
2
3

Wenn Sie die Erdbebenkategorie manuell auswählen, können wir zwar den richtigen Aufzug für die gewählte Kategorie empfehlen, nicht aber überprüfen, ob dieser tatsächlich den Anforderungen am Standort entspricht.

ErdbebenkategorieBemessungsbeschleunigungMassnahmen am Aufzug
0αd ≤ 1Standard
11 < αd < 2.5Kleinere Anpassungen
22.5 ≤ αd < 4Mittlere Anpassungen
3αd ≥ 4Beträchtliche Anpassungen

Nach Erhalt der Bemessungsbeschleunigung bestimmt der Unternehmer, der den Aufzug liefert, die Erdbebenkategorie für den Aufzug nach EN 81-77: Anhang A. Die Grösse der Bemessungsbeschleunigung $a_d$ bestimmt die Massnahmen am Aufzug, die durch den Hersteller getroffen werden müssen. Dies kann wiederum auch einen Einfluss auf die Kosten und Schachtabmessungen haben. Da auch die Befestigungen der Bemessungssituation zwingend berücksichtigt werden müssen, sollte bereits in der Planungsphase die Montageart, Ankerbolzen (gedübelt) oder Ankerschienen (z.B. Halfen, Hilti), festgelegt und dem Unternehmen mitgeteilt werden.

Normen & Gesetze

Die aktuellen Aufzugsnormen und gesetzlichen Vorschriften zu Aufzügen beeinflussen die Aufzugskonstruktion ebenso wie Wartungs- und Inspektionsarbeiten. Hier finden Sie eine Übersicht.

Sicherheit bei bestehenden Aufzügen

Alte Aufzüge können Sicherheitsrisiken bergen: So führen fehlende Kabinenabschlusstüren, eine schlechte Anhaltegenauigkeit oder fehlendes Sicherheitsglas immer wieder zu Unfällen.

Aus diesem Grund haben bereits gewisse Kantone die Umsetzung einzelner Punkte aus der Safety Norm for Existing Lifts (SNEL) gesetzlich vorgeschrieben. Es handelt sich dabei um eine europäische Sicherheitsnorm für bestehende Aufzüge, die in der Schweiz als SIA-Norm publiziert ist. Wo keine spezifischen Sicherheitsvorschriften existieren, sind Aufzugsbetreiber gemäss OR Artikel 58 dennoch in der Pflicht.

Gesetzliche Vorschriften zu neuen Aufzügen

Bei der Installation neuer Anlagen oder Ersatzanlagen gilt es neben den gesetzlichen Grundlagen der Aufzugsverordnung und der Maschinenverordnung des Bundes auch kantonale Bauvorschriften zu beachten.

Behindertengerechte Mobilität

Das Behindertengleichstellungsgesetz (BehiG) kommt zur Anwendung:

  • bei öffentlich zugänglichen Bauten und Anlagen
  • bei Wohngebäuden mit mehr als acht Wohneinheiten
  • bei Gebäuden mit mehr als 50 Arbeitsplätzen

Die Details zur Ausgestaltung des Zugangs und zu den technischen Ausführungsbestimmungen sind geregelt gemäss der Schweizer Norm SN 521500 (SIA 500), im kantonalen Baurecht und in der Europäischen Norm SN EN 81-70.

Brandschutzvorschriften & Erdbebensicherheit

Die Brandschutznorm sowie die Brandschutzrichtlinien und Prüfbestimmungen sind in der gesamten Schweiz identisch. Sie wurden von der Vereinigung Kantonaler Feuerversicherungen (VKF) übernommen und enthalten. Die Vorschriften in Bezug auf die Erdbebensicherheit unterscheiden sich je Kanton.

Factsheets zu den Normen

  • Factsheet «Erdbebensicherheit von Aufzügen»
  • Factsheet «Behindertengerechte Aufzüge»
  • Factsheet «Informationen zur Brandfallsteuerung»

Weiterführende Links

  • Hindernisfreie Architektur | Die Schweizer Fachstelle
  • sia | schweizerischer ingenieur- und architektenverein
  • Vereinigung Kantonaler Feuerversicherungen VKF
  • Bundesamt für Umwelt BAFU | Fachinformationen Erdbeben
  • Schweizer Gesellschaft für Erdbebeningenieurwesen und Baudynamik SGEB

Bestimmung der Erdbebenkategorie

ErdbebenkategorieBemessungsbeschleunigung Massnahmen am Aufzug
0αd ≤ 1Standard
11 < αd < 2.5Kleinere Anpassungen
22.5 ≤ αd < 4Mittle Anpassungen
3αd ≥ 4Beträchtliche Anpassungen

Anforderungen an Schacht und Aufzug

Anforderungen nach EN 81-77Erdbebenkategorie
(nicht abschliessend)123
Verhinderung von Verfangstellen (ab 20 m Schachthöhe)xxx
Notführung für die Kabinexx
Notführung für die Gegengewichtxxx
Schutz der Treibscheibe und Seilrolle mit Absprungsicherungenxxx
Auslegung Führungsschienensystem und Befestigungenxxx
Triebwerk und Steuerungxxx
Elektrische Einbauten im Schachtxxx
Verhalten bei Stromausfallxx
Erdbebenerkennungssystemx
  • Factsheet «Erdbebensicherheit von Aufzügen»
  • Schweizer Gesellschaft für Erdbebeningenieurwesen und Baudynamik SGEB

Genereller Geltungsbereich des hindernisfreien Bauens

Neu- und Umbauvorhaben nachfolgender Gebäudekategorien müssen den Anforderungen an das hindernisfreie Bauen entsprechen und insbesondere hindernisfrei zugänglich sein.

Öffentlich zugängliche Bauten und Anlagen

  • Gilt für die ganze Schweiz
  • umfasst die allgemeine Zugänglichkeit und Nutzbarkeitfür alle Personen, also auch für jene mit einer Körper-, Seh- oder Hörbehinderung, ohne dass die Hilfe Dritter benötigt wird.
  • Bauten, die allgemein zugänglich sind und einem nicht näher bestimmten Publikum offenstehen, z.B.Restaurants, Hotels, Banken, Verkaufsgeschäfte, Kinos,Theater, Museen, Aufenthaltsräume. Sport- und Wellnessanlagen;
  • Bauten, die einem bestimmten Personenkreis zur Verfügung stehen, wie z.B. Schulen, Kirchen und Clubanlagen;

Bauten mit öffentlich zugänglichen Dienstleistungen

  • Bauten, in denen Dienstleistungen persönlicher Natur erbracht werden und von einem nicht näher bestimmten Publikum in Anspruch genommen werden können, wie z.B. Arztpraxen, Anwaltskanzleien;
  • Besuchsbereiche in Bauten mit Arbeitsplätzen.

Bauten mit mehr als 50 Arbeitsplätzen inkl. Besucherbereiche

  • umfasst die rollstuhlgerechte Erreichbarkeit der Arbeitsplätze. Besuchsbereiche gehören zu öffentlich zugänglichen Bauten.

Bauten mit Wohnungen

  • Wohngebäude (auch private) ab einer bestimmten Anzahl Wohneinheiten entsprechend der Regelung der kantonalen Gesetzgebung (in einigen Kantonen ist der hindernisfreie Zugang bereits ab 4 oder 6 Wohneinheiten vorgeschrieben). Wo das kantonale Baugesetz keine Regelung vorsieht, gilt als Minimum nach BehiG ab 9 Wohneinheiten.

Bauten zur Pflege und Betreuung von Personen

  • Für Bauten wie Spitäler, Rehabilitationsstätten, Wohn- und Pflegeheime sowie Alterswohnungen u.ä. ist die Norm nicht hinreichend. Für solche Bauten sind die spezifischen, dem jeweiligen Zweck entsprechenden Anforderungen vorrangig.

Bauten zur Pflege und Betreuung von Personen

Die Fachstelle Hindernisfreie Architektur empfiehlt bei allen Neubauten, auch im Wohnungsbau, den Mindestanforderungen des Aufzug Typs 3 gerecht zu werden. Die Nutzerfreundlichkeit und -flexibilität des Gebäudes wird für alle verbessert: für Eltern mit Kinderwagen, Personen mit Velo, ältere Besucher mit Rollator oder für Materialtransport.

Minimaler Aufzug bei Umbauten

Kapazität: 450 kg / 6 Pers.

Eine Person mit Rollstuhl (Begleitperson nur beschränkt möglich) oder mit Gehhilfe

Kabine (B x T):

1.00 m x 1.25 m

Anwendung

Diese Kabine darf nur in bestehenden Bauten eingesetzt werden und nur wenn Statik und Grundriss des Gebäudes den Einbau einer Kabine Typ 2 nicht zulässt.

Diese Dimension schliesst grössere Rollstühle, insbesondere Elektro-Rollstühle, von der Nutzung aus.

Aufzug Typ 1

Aufzug für kleinere Bauten

Kapazität: 630 kg / 8 Pers.

Eine Person mit Rollstuhl oder Gehhilfe und eine weitere Person

Kabine (B x T):

1.10 m x 1.40 m

Anwendung

Diese Kabinengrösse gilt gemäss Norm SIA 500 als Minimum in kleineren Neu- und Umbauten (Abweichungen siehe Typ 1).

Aufzug Typ 2

Bei hohem Personenverkehr und im Aussenraum

Kapazität: 1000 kg / 13 Pers.

Ein bis zwei Personen mit Rollstuhl oder Gehhilfe und weitere Personen

Kabine (B x T):

1.10 m x 2.10 m

Anwendung

Diese Kabinengrösse gilt als Minimum für Aussenräume und bei hohem Publikverkehr (z.B. Bahnhöfe).

Eine Kabinentiefe von 2.10 m ermöglicht die Nutzung mit Rollstuhl-Zuggeräten, Elektro-Scooter, überlangen Rollstühlen sowie mit Rettungstrage.

Bei Spezialbauten gilt Typ 3 als minimale Aufzugsgrösse.

Aufzug Typ 3

Über-Eck zugänglicher Aufzug

Kapazität: 1000 kg / 13 Pers.

Eine Person mit Rollstuhl oder Gehhilfe und weitere Personen

Kabine (B x T):

1.40 x 1.60 m / 1.60 x 1.40 m

Anwendung

Diese Kabinengrösse gilt als Minimum, wo Zugänge auf mehreren Seiten erforderlich sind. Türen sind auch auf drei Seiten möglich.

Mit dieser Grösse ist die 90°-Drehung, um durch die zweite Türe auszufahren, mit dem Elektro-Rollstuhl möglich.

Aufzug Typ 4

Aufzug mit ausreichendem Wenderaum

Kapazität: 1275 kg / 17 Pers.

Eine Person mit Rollstuhl oder Gehhilfe und weitere Personen

Kabine (B x T):

1.40 x 2.00 m / 2.00 x 1.40 m

Anwendung

Diese Kabinengrösse stellt einen ausreichenden Wenderaum für Personen mit Elektro-Rollstühlen und für solche mit Gehhilfen zur Verfügung.

Aufzug Typ 5

Durchlader: Zweiseitig zugänglicher Aufzug

Kapazität: 630 – 1000 kg / 8 – 13 Pers.

Nutzung siehe Typ 3 / Typ 2

Kabine (B x T):

1.00 m x 1.25 m

Anwendung

Diese Kabinengrösse stellt einen ausreichenden Wenderaum für Personen mit Elektro-Rollstühlen und für solche mit Gehhilfen zur Verfügung.

Aufzug Typ Durchlader

Bewegungsfläche, Bedienelemente & Leitliniensystems

Anforderungen Bewegungsfläche gemäss SIA Norm 500

  • Eine gefällsfreie Manövrierfläche vor der Schachttüre ist zum Ein- und Ausfahren erforderlich. Sie muss min. 1.40 m x 1.40 m gross, auf das Türlicht zentriert und uneingeschränkt nutzbar sein (Bild 1).
  • Im Wohnungsbau darf die Tiefe der Manövrierfläche vor der Schachttüre auf 1.20 m reduziert werden. Bei einem gegenüberliegenden Treppenabgang ist jedoch ein Sicherheitsabstand von min. 1.40 m zwingend einzuhalten (Bild 1).
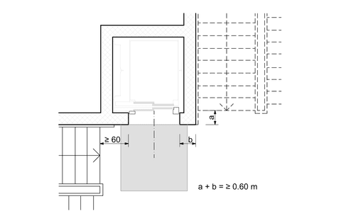
  • Zwischen Schachttüren und seitlich angeordneten Treppenabgängen ist ein Abstand von min. 0.60 m erforderlich. Gemäss SIA 500 ist die kürzeste Verbindung zwischen Treppenaustritt und Aussenkante der Türleibung wie im Beispiel (Bild 2) zu bestimmen.

Befehlsgeber auf dem Stockwerk/Podest

  • Der Abstand zwischen Ruftaster und Raumecken oder Treppen muss min. 0.70 m betragen (Bild 3).
  • Befehlsgeber dürfen nicht mehr als 0.25 m in einer Nische oder Türleibung zurückversetzt sein.
SIA500 Guidelines: Bewegungsfläche und Absturzgefahr

Bild 1: Bewegungsfläche und Absturzgefahr

SIA500 Guidelines: Bewegungsfläche und Absturzgefahr

Bild 2: Abstand zu seitlichen Treppenabgängen

SIA500 Guidelines: Bewegungsfläche und Absturzgefahr

Bild 3: Abstand zwischen Raumecken oder Treppen

SIA500 Guidelines: Bewegungsfläche und Absturzgefahr

Bild 4: Leitlinie zur Ruftaste eines Aufzugs

Rechtliche Bestimmungen

Bundesrecht

Behindertengleichstellungsgesetz (BehiG)

Kantonal und kommunal

Kantonale Bestimmungen – Hindernisfreie Architektur | Die Schweizer Fachstelle

  • Factsheet «Behindertengerechte Aufzüge»

Übersicht Feuerwehraufzug

Je nach Erschliessungskonzept sind Bauten und Anlagen mit einem oder mehreren Feuerwehraufzügen auszurüsten. Hochhäuser sind mit Feuerwehraufzügen auszurüsten.

Übersicht Feuerwerhaufzug

Was ist ein Hochhaus?

Es gibt keine verbindliche Definition eines Hochhauses. Die meisten kantonalen Bauordnungen und auch die Schweizerischen Brandschutznormen verstehen darunter ein Gebäude mit einer Höhe von mehr als 30 Metern.

Die Gesamthöhe ist der grösste Höhenunterschied zwischen dem höchsten Punkt der Dachkonstruktion und den lotrecht darunter liegenden Punkten auf dem massgebenden Terrain. Bei den höchsten Punkten der Dachkonstruktion handelt es sich bei Giebeldächern um die Firsthöhe, bei Flachdächern um die Dachfläche, beziehungsweise um den Dachflächenbereich über dem tiefstgelegenen Teil des massgebenden Terrains.

Gebäudeschnitte

Hochhaus Flachdach

Flachdach

Hochhaus Schrägdach

Schrägdach

Ausführungen und Zeichnungen

Ausführungen und ZeichnungenAusführungen und ZeichnungenAusführungen und ZeichnungenAusführungen und ZeichnungenAusführungen und ZeichnungenAusführungen und ZeichnungenAusführungen und ZeichnungenAusführungen und Zeichnungen
  • Factsheet «Informationen zur Brandfallsteuerung»
  • Richtlinien & Gesetze | Schindler Aufzüge AG

Downloads für Ihre Planung